Reklama
Rozbudowa SPZOZ w Cekcynie
Powiększona rejestracja, gabinety, nowa poczekalnia, przy wejściu głównym pionowa platforma dla niepełnosprawnych. Takie i wiele innych zmian można się spodziewać po ukończeniu przebudowy Samodzielnego Publicznego Zakładu Opieki Zdrowotnej w Cekcynie.
Ruszyła rozbudowa frontowej części budynku ośrodka zdrowia. Na ten czas, są dostępne dwa wejścia do obiektu, w tym jedno przystosowane dla osób niepełnosprawnych.
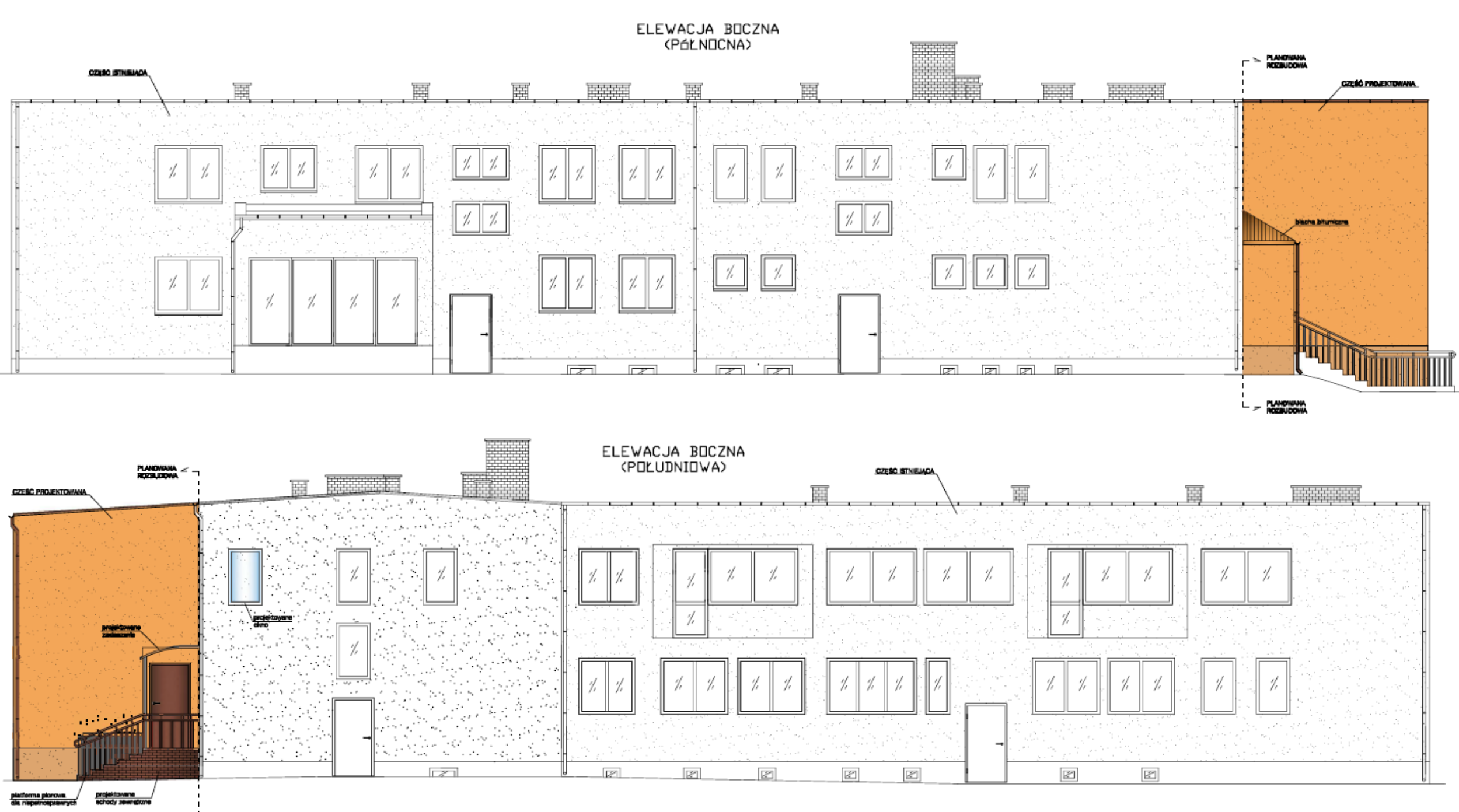
W obiekcie przewiduje się realizację funkcji opieki zdrowotnej, w tym gabinetów lekarskich (poradni). Planowana inwestycja obejmuje rozbudowę istniejącej rejestracji oraz gabinetu lekarskiego nr 12. Plan zakłada również powiększenie gabinetu nr 24 oraz utworzenie nowego gabinetu wraz z poczekalnią.
Oddzielenie przychodni dziecięcej od przychodni dla dorosłych, poprzez montaż ścianki akustycznej. Przewidziano także, dostosowanie obiektu dla osób niepełnosprawnych, poprzez instalację platformy pionowej przy głównym wejściu oraz platformy przyschodowej od strony południowej, a także przebudowę istniejącej klatki schodowej. Projektowane są nowe schody zewnętrzne od strony poradni dziecięcej. Na piętrze istniejące pomieszczenia mieszkalne zostaną przekształcone w pomieszczenia administracyjne, takie jak sala narad, biuro kierownika, księgowość oraz administracja. W kotłowni na kondygnacji piwnicznej, planuje się powiększenie otworów okiennych zgodnie z wymaganiami przeciwpożarowymi.
Wykonawcą inwestycji jest firma MarVinci z Chojniczek, całkowity jej koszt wynosi 1 310 712,91 zł dofinansowane z Rządowego Programu Inwestycji Strategicznych w kwocie 2 000 000,00 zł (w tej kwocie zawiera się również dofinansowanie przebudowy budynku urzędu gminy). Planowany wstępny termin realizacji to kwiecień 2025r.

